Negozio in vendita

Ponte San Nicolò, Piazza Falcone Borsellino - Roncaglia
€ 150.000
1 locale 1 locale
50 Mq 50 Mq
1 bagno 1 bagno

Negozio in vendita

Ponte San Nicolò, Piazza Falcone Borsellino - Roncaglia

Descrizione annuncio

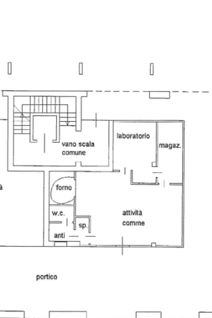
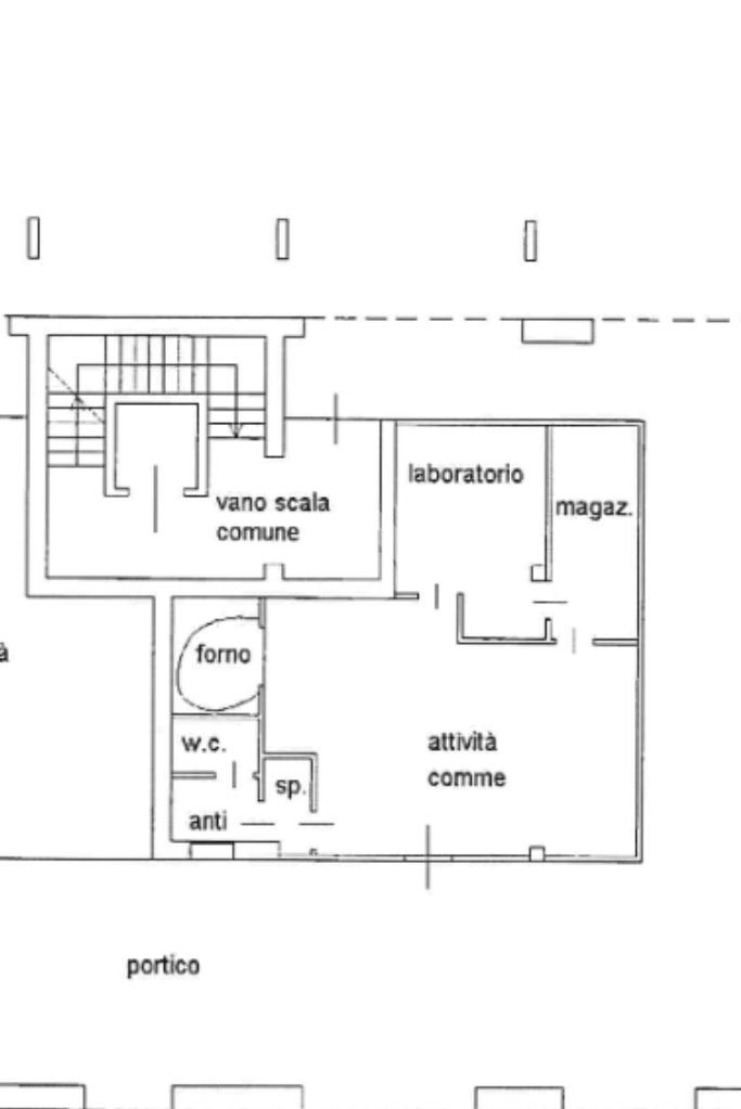
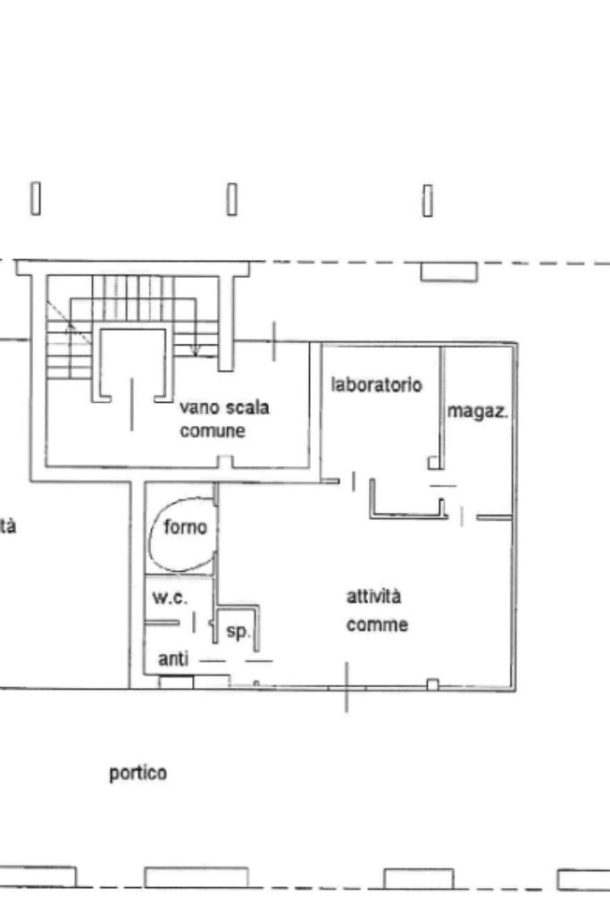
RONCAGLIA - Nel quartiere dei ' Navigli ', proponiamo negozio per investimento di 50mq fronte pracheggio principale con due vetrine.
Internamente l'immobile si presenta diviso in vari ambienti : sala princiale, magazzino, laboratorio e area servizi igienci.
Attualmente locato a Euro 1100,00 al mese.

Mostra tutto

Nelle vicinanze

Trasporto pubblico Trasporto pubblico
PSN Marconi ang Mameli
PSN Marconi ang Mameli
280 m
PSN Marconi tabella
PSN Marconi tabella
350 m
Scuole Scuole
Scuole
1,9 Km
Dipartimento ICEA, sede di Lungargine Rovetta, Univeristà di Padova
2,5 Km
Laboratorio di Propulsione Aerospaziale - Università di Padova
2,5 Km
Scuola media Stefanini
2,6 Km
Scuola Elementare I.Nievo
2,6 Km
Farmacia Farmacia
San Nicolò
290 m
Farmacia Meltias
1,0 Km
Ziliotto Pattanaro
1,1 Km
Farmacia Stoppa
2,2 Km
Farmacia Perin Franco
2,6 Km
Supermercati Supermercati
Coop
170 m
Supermercati
180 m
Prix
180 m
NaturaSi
310 m
Isola Fruit
1,1 Km
Negozi Negozi
Panificio Pasticceria Caffetteria F.lli Galleazzo
40 m
Negozi
240 m
Il Punto
700 m
Il fornaio
1,1 Km
Pellicceris elle furs
2,2 Km
Bar Bar
Zanzibar
1,2 Km
Bar
1,9 Km
Snack Bar Spritzeria Click
2,2 Km
Loris Bar
2,4 Km
Bar Caffè Mirò
2,6 Km
Ristoranti Ristoranti
Paulaner
440 m
Flame'n Co.
530 m
Pizzeria da Checco
800 m
La Fiorentina
890 m
Boomerang Risto Garden Club
900 m
Mostra tutto

Caratteristiche

Rif.:
61203002
Piano:
Terra di 3
Totale piani:
3
Condizionamento:
Autonomo
Ascensore:
No
Riscaldamento:
Centralizzato
Mostra tutto
Prezzo Prezzo
€ 150.000
Rata mutuo Rata mutuo
€ 712 / mese
Spese annue Spese annue
€ 150
Proponi il tuo prezzoProponi il tuo prezzo

Classe Energetica

C
C
C
C
C
C
C
C
C
EP globale non rinnovabile:
98.25 kW h/m² anno
EP globale rinnovabile:
0.00 kW h/m² anno
EP invernale del fabbricato:
EP estiva del fabbricato:
Anno di costruzione:
2014
Riscaldamento:
Centralizzato
Tipo impianto:
Ad aria
Tipo alimentazione:
Aria

Ti interessa visionare l'immobile?

Fissa un appuntamento  Fissa un appuntamento

Richiedi informazioni

Clicca su Leggi per aprire l'informativa
* Questi campi sono obbligatori

Calcola il tuo mutuo

Semplice e senza impegno
Anticipo

( % )
Mutuo

( % )

pochi semplici passi

inserisci i tuoi dati
Questionario completato
Grazie per aver richiesto un appuntamento senza impegno con un nostro Consulente del Credito e Assicurativo.

Hai inserito correttamente tutti i dati necessari e a breve riceverai una e-mail con un link da convalidare per inviare i tuoi dati.
Affiliato
Kira Ponte Srl
Via G.Marconi, 174 35020 Ponte San Nicolò (PD)

Il nostro staff


  • Jacopo Salmaso
    Affiliato

  • Elena Compagnin
    Collaboratrice

  • Francesco Candiotto
    Collaboratore

  • Alex Gabriel Pasat
    Collaboratore

  • Jessica Volpin
    Coordinatrice
Via G.Marconi, 174 35020 Ponte San Nicolò (PD)
Zona: Roncaglia-Ponte San Nicolò-Voltabarozzo-Legnaro
Mostra su mappa
Affiliato
Kira Ponte Srl
Via G.Marconi, 174 35020 Ponte San Nicolò (PD)

2026 Tecnocasa Franchising S.p.A. - P. IVA 08365160152 - Via Monte Bianco 60/A 20089 Rozzano (MI). Ogni agenzia ha un proprio titolare ed è autonoma. Privacy policy | Policy utilizzo | Cookie policy