Trilocale in vendita

Padova, Via Colonnello de Cristoforis - Stanga
€ 205.000
3 locali 3 locali
140 Mq 140 Mq
1 bagno 1 bagno

Trilocale in vendita

Padova, Via Colonnello de Cristoforis - Stanga

Descrizione annuncio

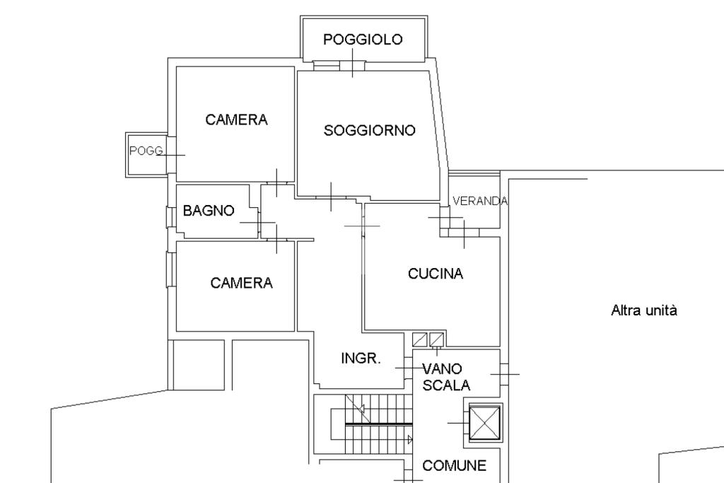
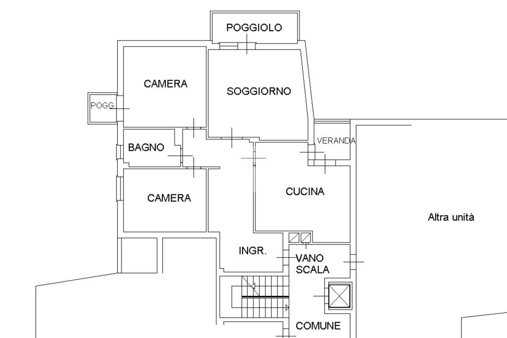
PADOVA ZONA STANGA - In posizione strategica, con scuola elementare e media sotto casa, fermata del tram a pochi passi che consente un collegamento rapido e diretto con il centro città e, ingresso all'autostrada a pochi chilometri, proponiamo appartamento al quarto piano in una palazzina dotata di ascensore e in ottimo contesto residenziale.

Dall'ingresso si accede a un ampio corridoio con armadio a muro, soggiorno ampio e luminoso con cucina separata abitabile, camera doppia, camera matrimoniale e bagno finestrato completamante rifatto nel 2017.
Doppie terrazze, una con accesso dalla zona soggiorno e una con accesso dalla camera matrimoniale, in entrambe è stata rifatta la pavimentazione.
Completano la proprietà garage singolo e cantina di 25 mq, ideale come spazio di deposito o locale hobby.

L'immobile è stato parzialmente ristrutturato nel corso degli anni dove, sono andati a rifare : infissi e messi con doppio vetro camera in PVC bianco, rifatte le terrazze, rifatto pavimento nella camera matrimoniale, bagno completamente, impianto elettrico e nel 2023 è stato rifatto nuovo il tetto e le grondaiei.

Soluzione ideale per famiglie e per chi desidera abitare in una zona centrale e ben servita.

Mostra tutto

Nelle vicinanze

Trasporto pubblico Trasporto pubblico
stazione di Padova
stazione di Padova
2,1 Km
Padova Interporto
Padova Interporto
2,4 Km
Arcella
Arcella
2,1 Km
Trasporto pubblico
2,1 Km
Via Maroncelli / Manara
Via Maroncelli / Manara
160 m
Ricariche auto elettriche Ricariche auto elettriche
APS Cittadella Stanga
430 m
EnelX EVA+ Padova Est
600 m
Best Western Hotel Galileo
850 m
Park Padova centro
1,7 Km
Fondazione Fenice Green Energy Park Onlus | Driwe
1,8 Km
Scuole Scuole
Scuole
80 m
Scuola elementare Dina Luzzatto
850 m
Asilo nido "La Balena Blu"
860 m
Aula studio "ex-FIAT"
890 m
Centro Linguistico di Ateneo
920 m
Farmacia Farmacia
Parafarmacia Conad
210 m
Farmacia Faccioli
1,3 Km
Farmacia Comunale S. Lorenzo
1,5 Km
Farmacia Mortise
1,5 Km
Farrmacia Comunale Alla Pace
1,6 Km
Ospedali Ospedali
Croce Rossa
790 m
Istituto Oncologico Veneto
1,7 Km
Azienda Ospedaliera di Padova
1,7 Km
Ospedale Giustinianeo
1,8 Km
Ospedale Sant'Antonio
2,5 Km
Supermercati Supermercati
Conad
230 m
Alì
260 m
La buona dispensa - Il supermercato del biologico
620 m
In's mercato
1,2 Km
SPAK Supermercato
1,3 Km
Negozi Negozi
Kiabi
430 m
Gastaldon
770 m
Panificio pasticceria S. Camillo
1,6 Km
Panificio Jessica
1,7 Km
Alimentari Sumiti
1,7 Km
Bar Bar
Parco della Musica
600 m
Didi's
760 m
Corte Sconta
960 m
Ti Amo
970 m
RetroGusto
1,2 Km
Ristoranti Ristoranti
Mensa Murialdo
150 m
Ristorante da Giovanni
160 m
RoadHouse Grill
410 m
I-Sushi
480 m
Il Melograno
580 m
Mostra tutto

Caratteristiche

Rif.:
61105015
Piano:
4 di 6 con ascensore (Piano alto)
Box:
1
Posti auto:
1
Terrazzi:
2
Camere da letto:
2
Mostra tutto
Prezzo Prezzo
€ 205.000
Rata mutuo Rata mutuo
€ 973 / mese
Spese annue Spese annue
€ 1.500
Proponi il tuo prezzoProponi il tuo prezzo

Classe Energetica

G
G
G
G
G
G
G
G
G
EP globale non rinnovabile:
256.20 kW h/m² anno
EP globale rinnovabile:
0.00 kW h/m² anno
EP invernale del fabbricato:
EP estiva del fabbricato:
Anno di costruzione:
1970
Riscaldamento:
Centralizzato
Tipo impianto:
A radiatori
Tipo alimentazione:
Metano

Ti interessa visionare l'immobile?

Fissa un appuntamento  Fissa un appuntamento

Richiedi informazioni

Clicca su Leggi per aprire l'informativa
* Questi campi sono obbligatori

Calcola il tuo mutuo

Semplice e senza impegno
Anticipo

( % )
Mutuo

( % )

pochi semplici passi

inserisci i tuoi dati
Questionario completato
Grazie per aver richiesto un appuntamento senza impegno con un nostro Consulente del Credito e Assicurativo.

Hai inserito correttamente tutti i dati necessari e a breve riceverai una e-mail con un link da convalidare per inviare i tuoi dati.
Affiliato
Kira Ponte Srl
Via G.Marconi, 174 35020 Ponte San Nicolò (PD)

Il nostro staff


  • Jacopo Salmaso
    Affiliato

  • Elena Compagnin
    Collaboratrice

  • Francesco Candiotto
    Collaboratore

  • Alex Gabriel Pasat
    Collaboratore

  • Jessica Volpin
    Coordinatrice
Via G.Marconi, 174 35020 Ponte San Nicolò (PD)
Zona: Roncaglia-Ponte San Nicolò-Voltabarozzo-Legnaro
Mostra su mappa
Affiliato
Kira Ponte Srl
Via G.Marconi, 174 35020 Ponte San Nicolò (PD)

2026 Tecnocasa Franchising S.p.A. - P. IVA 08365160152 - Via Monte Bianco 60/A 20089 Rozzano (MI). Ogni agenzia ha un proprio titolare ed è autonoma. Privacy policy | Policy utilizzo | Cookie policy