Porzione di bifamiliare in vendita

Legnaro, Via orsaretto
€ 160.000
6 locali 6 locali
270 Mq 270 Mq
2 bagni 2 bagni

Porzione di bifamiliare in vendita

Legnaro, Via orsaretto

Descrizione annuncio

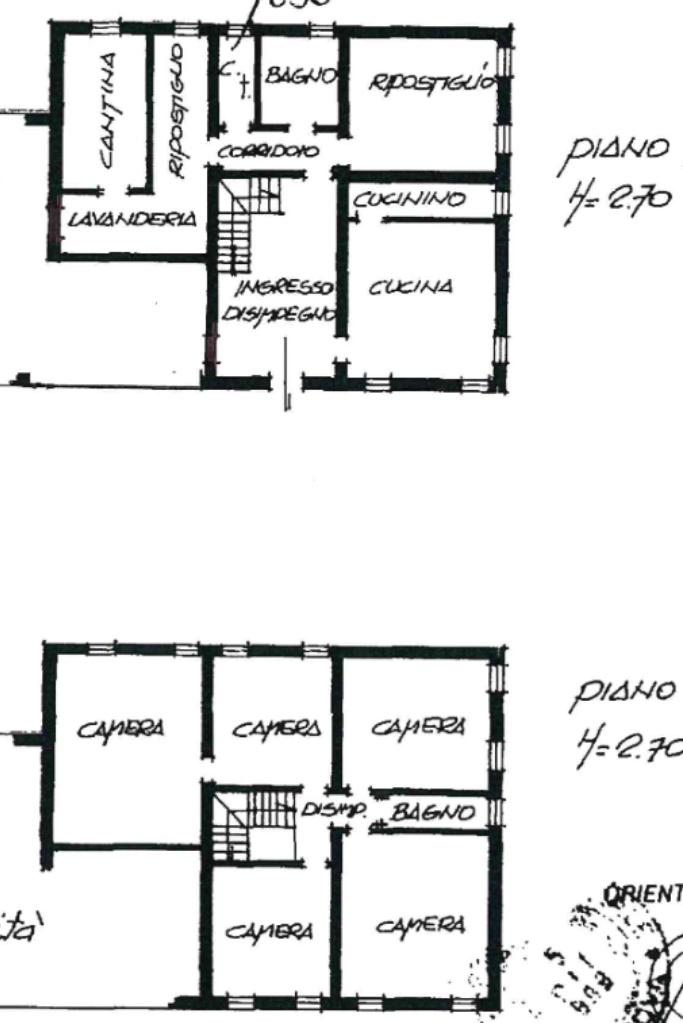
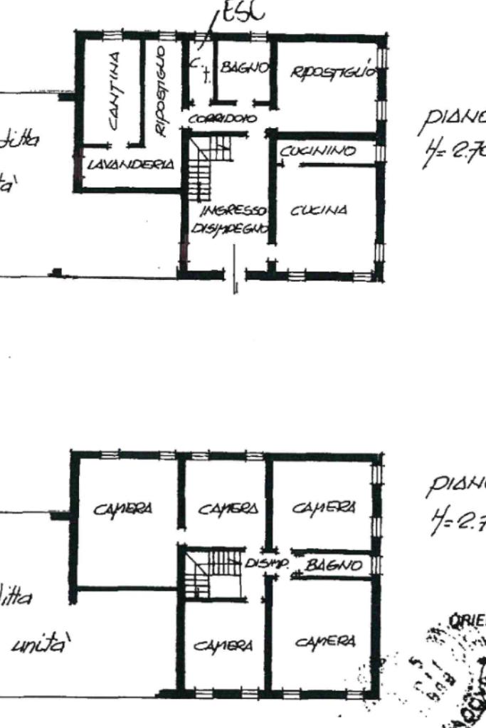
LEGNARO - In zona centrale e ben servita, ampia porzione di bifamiliare disposta su due livelli con giardino privato, ideale per famiglie che desiderano indipendenza e comodità.

Entrando nell’immobile si accede a un ampio ingresso con scala a vista, cucina separata abitabile, soggiorno ampio e luminoso con caminetto a legna e bagno finestrato con doccia.
La zona giorno è funzionale e ben distribuita, pensata per garantire comfort e praticità.
Al piano terra troviamo anche cantina e zona lavanderia collegate entrambi con l interno della casa.
Passando al piano superiore si sviluppa tutta la zona notte, composta da cinque camere da letto matrimoniali, perfette per chi necessita di spazi aggiuntivi per studio, hobby o lavoro da casa, e secondo bagno finestrato con doccia.

La proprietà è completata da un giardino privato di circa 500mq , ideale per momenti di relax all’aperto, pranzi in famiglia e attività all’aria aperta.

Nel corso degli anni sono stati eseguiti i seguenti i lavori di ristrutturazione :
- Rifacimento del tetto
- Adeguamento impianto elettrico
- Sostituzione degli infissi e installati infissi in legno con doppio vetro camera
- Ristrutturazione di un bagno

Si tratta di una soluzione che unisce ampie metrature, comfort abitativo e la praticità di una posizione centrale, vicina a tutti i principali servizi.

Mostra tutto

Nelle vicinanze

Trasporto pubblico Trasporto pubblico
Trasporto pubblico
270 m
Agripolis
Agripolis
470 m
Ricariche auto elettriche Ricariche auto elettriche
Conad Legnaro | EnelX
450 m
Scuole Scuole
Scuole
330 m
Dipartimentodi Scienze animali
530 m
Dipartimento di Biotecnologie agrarie
530 m
Scuole
580 m
Campus Agripolis
590 m
Farmacia Farmacia
Querincis
260 m
Supermercati Supermercati
Conad
440 m
Prix Quality
1,2 Km
Prix
1,2 Km
Bar Bar
Bar
400 m
Ristoranti Ristoranti
Baretta
120 m
Osteria dal Nonno
810 m
Osteria al Sole
1,7 Km
Trattoria La Busa
2,0 Km
Ristorante Pizzeria al Ponte
3,0 Km
Mostra tutto

Caratteristiche

Rif.:
61107152
Piano:
2 di 2 (Piano su più livelli)
Posti auto:
1
Camere da letto:
5
Arredamento:
Completo
Condizionamento:
Autonomo
Mostra tutto
Prezzo Prezzo
€ 160.000
Rata mutuo Rata mutuo
€ 733 / mese
Spese annue Spese annue
€ 0
Proponi il tuo prezzoProponi il tuo prezzo

Classe Energetica

G
G
G
G
G
G
G
G
G
EP globale non rinnovabile:
245.60 kW h/m² anno
EP globale rinnovabile:
0.00 kW h/m² anno
EP invernale del fabbricato:
EP estiva del fabbricato:
Anno di costruzione:
1989
Riscaldamento:
Autonomo
Tipo impianto:
A radiatori
Tipo alimentazione:
Metano

Ti interessa visionare l'immobile?

Fissa un appuntamento  Fissa un appuntamento

Richiedi informazioni

* Questi campi sono obbligatori

Calcola il tuo mutuo

Semplice e senza impegno
Anticipo

( % )
Mutuo

( % )

pochi semplici passi

inserisci i tuoi dati
Questionario completato
Grazie per aver richiesto un appuntamento senza impegno con un nostro Consulente del Credito e Assicurativo.

Hai inserito correttamente tutti i dati necessari e a breve riceverai una e-mail con un link da convalidare per inviare i tuoi dati.
Affiliato
Kira Ponte Srl
Via G.Marconi, 174 35020 Ponte San Nicolò (PD)

Il nostro staff


  • Jacopo Salmaso
    Affiliato

  • Elena Compagnin
    Collaboratrice

  • Jessica Volpin
    Coordinatrice
Via G.Marconi, 174 35020 Ponte San Nicolò (PD)
Zona: Roncaglia-Ponte San Nicolò-Voltabarozzo-Legnaro
Mostra su mappa
Affiliato
Kira Ponte Srl
Via G.Marconi, 174 35020 Ponte San Nicolò (PD)

2025 Tecnocasa Franchising S.p.A. - P. IVA 08365160152 - Via Monte Bianco 60/A 20089 Rozzano (MI). Ogni agenzia ha un proprio titolare ed è autonoma. Privacy policy | Policy utilizzo | Cookie policy